
案例信息
项目地址:万科溪望
项目类型:住宅
项目面积:375㎡
项目风格:北欧风
玄关

步入楼玄关,眼前是一幅名为《法西思少女》的装饰画,其流畅、主观、强烈的艺术线条表现,与灰色极简艺术装置形成美的分析与观照,设计师基于文艺内在联系,于空间中做美感论述与人文思考。
客厅

杭州万科溪望375方复式别墅轻水泥性冷淡北欧风实拍样板间-客厅一角-装修效果图
客厅设计在配色上主取高级灰调,间以旧木肌理、点缀一点绿色的绿植,整体气势脉络干净利落。方与圆的意象指涉,单线与线圈的美学规律,现代理性与东方雅致借由器物的形与色婉转渗入空间之中。

杭州万科溪望375方复式别墅轻水泥性冷淡北欧风实拍样板间-客厅一角-装修效果图

对家的丰满想象与美好向往,解构空间与人之间安全感、归属感与幸福感的理想联立,筑梦,亦筑真实生活纪程。设计师巧用色调排布来定格空间气质与氛围,其中低调黑、高级灰与硬装框架的肌理相映衬,清峻克制的中性北欧风扑面而来。同时,几抹红调的点缀介入,优雅绽放,为清冷的空间中融注了温雅妍丽的东方写意气息。

杭州万科溪望375方复式别墅轻水泥性冷淡北欧风实拍样板间-客厅一角-装修效果图

杭州万科溪望375方复式别墅轻水泥性冷淡北欧风实拍样板间-客厅一角-装修效果图

杭州万科溪望375方复式别墅轻水泥性冷淡北欧风实拍样板间-客厅一角-装修效果图

餐厅

杭州万科溪望375方复式别墅轻水泥性冷淡北欧风实拍样板间-餐厅一角-装修效果图

餐厅内抽象挂画与红色装饰架延续空间的艺术格调,流线交缠的金灯饰呼应餐椅的姜黄暖调,四时三餐、一蔬一饭在家的外壳之下,被人赋予了果腹外的附加意义,投射了人们对温馨点滴的期许,临窗沐阳,饮食其间,自在畅快。

杭州万科溪望375方复式别墅轻水泥性冷淡北欧风实拍样板间-餐厅一角-装修效果图



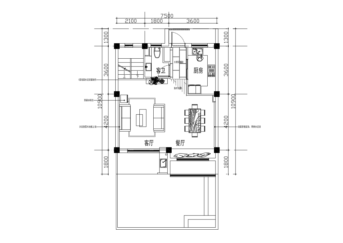
平面设计方案



厨房

厨房空间整个以浅色系搭配,米白色的橱柜搭配浅色墙砖、地砖,恬淡的生活气息融入空间中,追求艺术感之余,增加了几分生活气息。
酒水吧台

结合中岛台柱设计简易酒水吧台,浅灰色水泥漆以及灰色大理石纹地砖营造出一种高冷、桀骜的空间质感,简洁之余更具艺术姿态。

活动区

活动区设有运动设施,作为日常活动区。有色玻璃镜面设计,既营造出一种深邃的高级感,同时也让空间看上去更加开阔,增加视觉效果。
阅读区



阅读区结合沙发和旧木肌理的书柜设计,立式书柜结合小矮柜,随意摆放的书本、画饰让空间看上去更加随性,阅读成为一种十分放松的享受。

琴房区


练琴区,搭配全身镜设计,同时作为练舞区。集音乐与舞蹈于一体,是艺术交流的绝佳空间。

卫生间

浓厚的水泥工业风台面、台盆、墙面融为一体,简洁、干练的工业极简风,摆上一盆气质清冷的盆景,颇有诗意,融入生活艺术元素。
露台

清风续,翠意浓。设计师将阳台的场地利用起来,搭建了一隅休息角,供人闲时消遣。在这里,常绿植物葳蕤生长,木作座椅朴实素拙,随着四时轮换,人们的生活意趣日渐丰富,意趣盎然。

楼梯


杭州口碑第一品牌公司恒彩装饰,欢迎咨询,专业家装、正规家装,杭州口碑最好的装修公司,欢迎免费获取装修报价。

杭州复式楼装修公司,杭州别墅装修公司,北欧风格装修,恒彩装饰,专业可靠,杭州最好的装修公司。
→装修咨询(售前售后及优惠信息)
杭州口碑最好的装修公司品牌
恒彩装饰一辈子专注品质家装
自有产业工人装修质量更可靠
材料全国知名厂家精选直采
28项口碑工程终身免费维修