工程地址:
西溪华府
面积:89方
设计风格:北欧风情
装修模式:半包 + 选材指导 + 软装设计
设计风格: 北欧风格 简洁、现代
以浅色为代表,整体感舒适自然,
同现代简约风格有着极大的相似,颇受现在年轻人的喜爱。
西溪华府装修实景图
客厅
杭州西溪华府三室两厅北欧风设计案例——客厅一角
杭州西溪华府三室两厅北欧风设计案例——客厅一角
家居的选择不仅仅是外观唯美,更注重舒适性的体验,搭配浅淡的色彩,一种洁净的清爽感扑面而来。

杭州西溪华府三室两厅北欧风设计案例——客厅一角
家具的选购与色彩以及布品的搭配,协调、对称的技巧,让每一个细节的铺排,都呈现令人倍感舒适的气氛。

杭州西溪华府三室两厅北欧风设计案例——客厅一角
本案的客厅搭配不仅仅是结合了女主的喜好,更是融入了男主的心思,沙发背后的几何线条,地板上墙的电视背景都是男主的最爱,更让人惊羡的是如此客厅还搭配上了投影仪,搭配上音箱摇身一变自己的家庭影院。舒适.....

杭州西溪华府三室两厅北欧风设计案例——客厅一角
诗人的世界往往都是充满浪漫情怀的,文艺女主自愚粗心大意何尝又不是心思细腻呢? 献上女主诗人般的情怀:
千里蒹葭十里洲
溪居宜月更宜秋
黄橙红柿紫菱角
不羡人家万户侯
餐厅




原始结构图

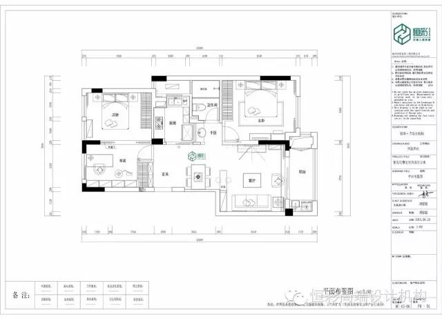
平面设计图

厨房

卧室


没记错的话主人公家的床应该是宜家采购的,依稀记得女主在帖子中贴出男主亲自动手组装的照片,浓浓的浪漫气息哈,墙面的是素色的,窗帘的选择很有味道;床头的油画搭配两个长长的吊灯,看起来是不是非常有感觉?
书房


摄影师眼里总是能捕捉到不一样的风景
卫生间



杭州口碑排名第一品牌公司恒彩装饰,很高兴为您服务,欢迎各位朋友通过恒彩装饰公司官网预约设计,获取装修报价。
→装修咨询(售前售后及优惠信息)
杭州口碑最好的装修公司品牌
恒彩装饰一辈子专注品质家装
自有产业工人装修质量更可靠
材料全国知名厂家精选直采
28项口碑工程终身免费维修